Studio Progetti Integrati

MENO E PIU 3
SCUOLA IN GEORGIA
IMPIANTI SPORTIVI LACONI
IMPIANTI SPORTIVI ARMUNGIA
IMPIANTI EAF FLUMENDOSA
STRADA DI MONTAGNA
CAPPELLA CIMITERIALE BONARIA
DEPURATORE SANT'ANNA ARRESI
LOTTIZZAZIONE SARROCH
P.D.Z. TORRESINA 2
IMPIANTI SPORTIVI BENETUTTI
SCHIERA A BARRACCA MANNA
RESIDENZE A DECIMOMANNU
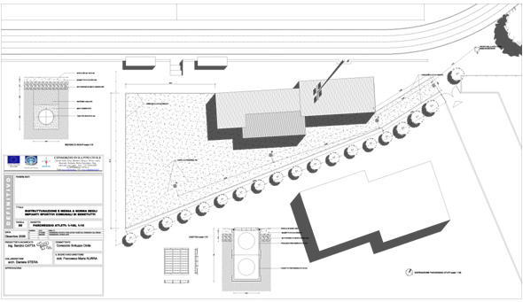
IMPIANTI SPORTIVI BENETUTTI
[I LAVORI > 2007...]
campo da calcio
spogliatoi

Il complesso sportivo si colloca in una vasta area nella periferia a nord del centro abitato; si compone essenzialmente di un campo da calcio con annessi spogliatoi, di un piccolo campo di allenamento ed una pista. Sono inoltre presenti una serie di strutture ed aree a servizio del pubblico quali parcheggi, tribune e servizi igienici.

il complesso sportivo

Il progetto ha individuato, compatibilmente con le risorse a disposizione, le priorità di intervento, da portare avanti con una proposta funzionale rispetto alla complessità delle problematiche emerse in occasione dei rilievi, che si riassumono sostanzialmente nel parziale adeguamento alle norme dell'impianto, nella messa in sicurezza e nella predisposizione di alcune opere di completamento.

area spogliatoi
   info@spi.ca.it